Immobilien für
die Zukunft
Wir entwickeln, verkaufen und vermieten Wohn- und Gewerbeobjekte, die durch Architektur, Funktionalität und Wertbeständigkeit überzeugen – mit Schwerpunkt in Graubünden und im Tessin. Dank unserer regionalen Verankerung, nachhaltigen Bauweise und einem hohen Qualitätsanspruch schaffen wir Lebensräume, die Generationen überdauern.
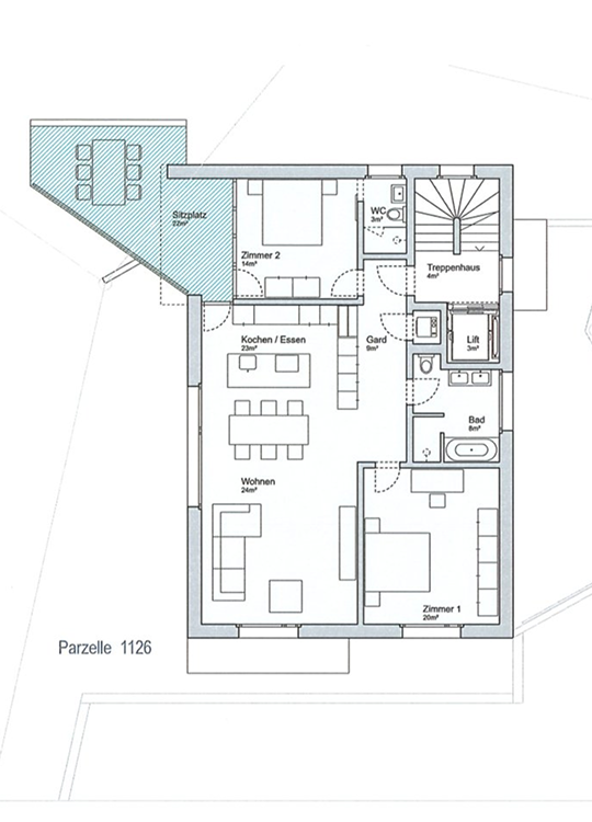
Casa Curtin – Wohnen mit Gletscherblick
Mit dem Neubau des Mehrfamilienhauses Casa Curtin in Peisel, 7186 Segnas, realisiert die Casatec Group SA ein modernes und nachhaltiges Wohnprojekt. Das Gebäude vereint zeitgemässe Architektur mit hoher Wohnqualität und bietet attraktive Mietwohnungen in idyllischer Lage. Durchdachte Grundrisse, hochwertige Materialien und eine energieeffiziente Bauweise sorgen für höchsten Komfort und eine nachhaltige Nutzung. Die ruhige Umgebung von Peisel macht Casa Curtin zu einem idealen Zuhause für alle, die Natur und modernes Wohnen verbinden möchten.
Unser Immobilienbestand
Immobilien zum Verkauf
Aktuell stehen keine Objekte zum Verkauf.
Immobilien zur Miete
Zurzeit sind keine Mietobjekte verfügbar.
Ihr Experte für Gebäudetechnik
